HIM
LAM LAND MỞ BÁN 20 CĂN HỘ HYCO4 ĐẸP NHẤT VỚI GIÁ CHỈ TỪ 1,2 TỶ ĐỒNG
Ø
PHONG THỦY HỮU TÌNH – GIAO THÔNG THUẬN LỢI
Với vị trí tọa lạc ngay trên mặt đường Nguyễn Xí có lộ giới
30m kết nối với đường vành đai Bình Lợi - Tân Sơn Nhất và phía bên kia là Cầu
Sài Gòn.
Theo quy hoạch trung tâm thành phố mở rộng đây là vị trí nằm trong khu quy hoạch đô thị
trung tâm. The HYCO4 TOWER chỉ cách trung tâm thành phố hơn 3km, sân bay Tân
Sơn Nhất khoảng 7 km.
Thuận lợi giao thông với hệ thống tàu ngầm (RMIT) được
xây dựng trong tương lai với trạm Văn Thánh (khoảng cách 1,5km), đến san bay quốc
tế Tân Sơn Nhất chưa đầy 15 phút. Hơn nữa để có thể hòa mình vào thiên nhiên tại
các khu vui chơi ngoài trời nhu khu du lịch Văn Thánh, Tân Cảng, Bình Quới các
cư dân chỉ mất 5-8 phút và khoảng 30 phút đến khu du lịch Suối Tiên, sân gôn Thủ
Đức.
Ngoài ra hệ thống trường tiểu học, trung học phổ thông rất
gần với vị trí của dự án như trường tiểu học Chu Văn An có thể đi bộ mà chỉ mất
5 phút.
Ø
QUY MÔ DỰ ÁN - Liên hệ: 0902.272.371 - A.TRUNG
The HYCO4 TOWER được thiết kế nhằm tận dụng tối đa vị trí
đắc địa của toàn bộ khu đất, ứng dụng phong thủy vào tận từng căn phòng với những
nét cấu trúc sang trọng, hiện đại. Tổng diện tích khuôn viên trên 6.200m2 cùng 3 block nhà cao 17 tầng với 330 căn hộ từ
1 đến 3 phòng ngủ. Trong đó:
- Một tầng hầm đậu xe diện tích 5.798m2
- Tầng trệt( tầng 1) + tầng lửng + tầng 2 (tổng diện tích
5.200m2): khu thương mại, khu dịch vụ, khu văn phòng, khu sinh hoạt cộng đồng
cho cư dân của tòa nhà với đầy đủ chức năng như: siêu thị, nhà hàng, coffee,
phòng tập thể dục đa chức năng…
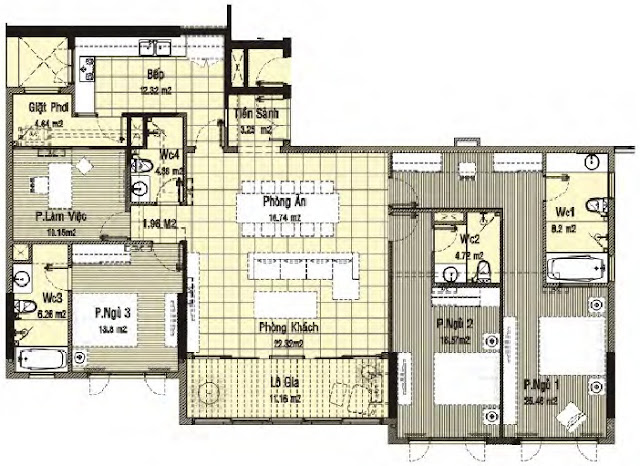
- Tầng 3 – 16: căn hộ từ 1 đến 3 phòng ngủ diện tích từ
52 – 123 m2
![]() |
| Mặt bằng bố trí tầng 3-16 |
- Tầng 17 (tầng penthouse): căn hộ 3 phòng ngủ diện tích
từ 178 – 224 m2
![]() |
| Mặt bằng bố trí tầng 17 |
Tòa nhà được trang bị nhập khẩu cao cấp và hiện đại với 2
thang máy tốc độ cao mỗi block, hệ thống báo cháy và chữa cháy tự động, hệ thống
thông tin liên lạc cho công tác an ninh và phục vụ sinh hoạt cộng đồng, hệ thống
cung cấp điện dự phòng…Ngoài ra hệ thống mạng truyền cáp, điện thoại, internet
cũng được cung cấp đến tận từng phòng trong căn hộ của bạn. Cư dân sống trong
tòa nhà hoàn toàn yên tâm vì sóng điện thoại di động sẽ được phủ tận mọi ngóc ngách của tòa nhà, không xảy ra hiện
tượng mất sóng như một số tòa nhà cao tầng khác đã bị.
Ø
THIẾT BÊN TRONG CĂN HỘ - Liên hệ: 0902.272.371 - A.TRUNG
* Căn hộ 1 phòng ngủ - diện tích 52m2
1) Diện tích 78m2
2 ) Diện tích 81m2
4) Diện tích 86m2
6)
Diện tích 93m2
7) Diện tích 94m2
* Căn hộ 3 phòng ngủ - 0902.272.371
2) Diện tích 132m2
3)
Diện tích 178m2 (penthouse)
4)
Diện tích 184m2 (penthouse)
5)
Diện tích 224m2 (penthouse)
Ø
TIỆN ÍCH - Liên hệ: 0902.272.371 - A.TRUNG
Với vị trí đắc địa, phong thủy hài hòa luôn mang lại sự
may mắn, niềm vui thư giãn sau một ngày làm việc mệt mỏi. The HYCO4 TOWER với mật
độ xây dựng 40%, khoảng không gian còn lại được dành riêng cho sinh hoạt cộng đồng,
công viên cây xanh bóng mát, tiểu đảo đài phun nước đem đến cho cộng đồng dân
cư một không khí bình yên trong lành và tươi mát quanh năm.
Khu mua sắm thương mại, dịch vụ, văn phòng với tổng diện
tích khoảng 5.200m2 được thiết kế, lắp đặt hiện đại phục vụ nhu cầu mua sắm của
mọi cư dân trong căn hộ cùng với đó là tầng
hầm rộng không những phục vụ cho nhu cầu của cư dân trong tòa nhà mà còn phục vụ
cho khách có nhu cầu tới mua sắm.
Ø
TRANG THIẾT BỊ - NỘI THẤT HIỆN ĐẠI VÀ CAO CẤP -
0902.272.371
Tòa nhà HYCO4 được thiết kế với phong cách hiện đại, lịch
lãm và thoáng đạt. Toàn bộ thiết bị nội thất bên trong được thiết kế hài hòa,
sang trọng và đều từ những nhà cung cấp uy tín trong và ngoài nước. Đảm bảo chất
lượng và thời gian sử dụng lâu dài.
Mỗi căn hộ được thiết kế hoàn thiện khi trao đến khách
hàng:
+ Sàn phòng khách, bếp
lát gạch bóng kiếng Bạch Mã 60cm x60cm; sàn phòng ngủ lát gỗ công nghiệp nhập
khẩu; sàn phòng tắm và ban công lát gạch thạch anh chống trượt.
![]() |
| Phòng khách |
+ Cửa sổ Euro Window, cửa
đi chính loại lõi thép nhập khẩu có thấu kính, cửa đi trong nhà và nhà vệ sinh
dùng cửa gỗ công nghiệp.
+ Thiết bị vệ sinh của
nhà cung cấp American Standar, Toto,…
+ Thiết bị điện của nhà
cung cấp Clipsal, National,…
=> Liên hệ: 0902.272.371 - A.TRUNG
Email: trung.nguyen@himlamland.com
Địa chỉ: Tòa nhà Liên Việt - Số 2A Nguyễn Thị Minh Khai, P.Đakao, Q.1, TP.HCM




















































